Ferme 1705 - Ferme 1705 - Ferme 1705 -
More Photos
Ferme 1705
1 550 000 €
Virtual Tour

This site is protected by reCAPTCHA Enterprise and the Google Privacy Policy and Terms of Service apply.

Superb rental investment or holiday home tucked away in a quiet spot in the heart of the vibrant Chamonix town centre.

Manu Maclean - Claire Williams Alpine Property agents for Chamonix & Valley

Key Features

Ferme 1705

Price
1 550 000 €uros
Status
FOR SALE
Last updated
04/11/2025
Area
Mont Blanc
Location
Chamonix & Vallée
Village
Chamonix
Bedrooms
5
Bathrooms
5
Floor area
174 m²
Land area
241 m²
Detached
No
Heating
Electric radiators
Chimney
Wood burning stove
Nearest skiing
400 m
Nearest shops
300 m
Garage
Single
Drainage
Mains drains
Agency fees
Paid by the seller

Location

Use map search

Property Description

Brimming with character, Ferme 1705 is one of the oldest buildings in central Chamonix and has been renovated with a view to conserving it’s historical charm, whilst ensuring that it provides a welcome refuge for guests after a day on the ski slopes or simply enjoying the many culinary and cultural activities that Chamonix town has to offer.

Nestled in a small street, a stone’s throw from the Aiguille du Midi cable car, restaurants, shops and the bus station, this semi-detached property is a great base from which to explore the valley and to enjoy the simple pleasure of popping out for a coffee and a baguette in the morning.

Its’ five ensuite bedrooms can sleep 11 people and the Swedish sauna and bath tubs are an added bonus to ease tired muscles.

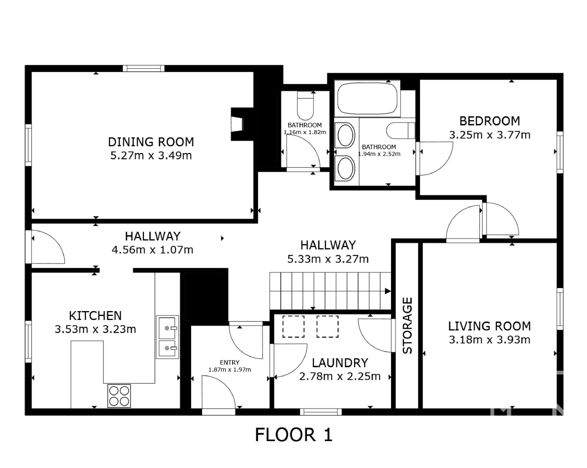
The farm comprises thus:

Ground Floor: entrance/boot area, fully equipped kitchen, dining room, cozy lounge/with vaulted ceiling, utility room, ski storage, twin bedroom with en-suite bathroom.

First Floor: Four remaining double bedrooms, each benefiting from its own private en-suite bathroom; one of these rooms also includes a practical mezzanine level with an additional single bed, sauna with an adjacent shower facility, offering a perfect relaxation space.

Ferme 1705 has a proven rental track record and has proved very popular with international visitors. Rental figures can be provided upon request.

Read more

Take a Virtual Tour

Energy Efficiency Ratings (DPE+GES)

Energy Efficiency Rating (DPE)

d

CO2 Emissions (GES)

c
DPE in detail

Other Chamonix & Vallée Chalets

...

Recently Viewed

...

Information on the risks to which this property is exposed is available on the Georisques site: www.georisques.gouv.fr

Energy Efficiency Ratings (DPE+GES)
logement très performant
consommation (énergie primaire)
227
kWh/㎡.year
émissions
28
kg CO2/
㎡.year
logement extrêmement consommateur d'énergie
passoire énergétique
Dont émissions de gaz à effet de serre
peu d'émissions de CO2
28 kg CO2/㎡.year
émissions de de CO2 trés importantes

Share Ferme 1705