This site is protected by reCAPTCHA Enterprise and the Google Privacy Policy and Terms of Service apply.


Fantastic opportunity to design and create your unique living space in the heart of the Chamonix valley
Manu Maclean - Claire Williams Alpine Property agents for Chamonix & ValleyKey Features
Ciel B
- Price
- 1 200 000 €uros
- Status
- FOR SALE
- Last updated
- 02/10/2025
- Area
- Mont Blanc
- Location
- Chamonix & Vallée
- Village
- Chamonix
- Bedrooms
- 3
- Bathrooms
- 3
- Floor area
- 107 m²
- Chimney
- Wood burning stove
- Ski access
- Ski bus
- Nearest skiing
- 2 km
- Nearest shops
- 450 m
- Garage
- None
- Drainage
- Mains drains
- Number of lots
- 3
- Procédure en cours
- No
- Agency fees
- Paid by the seller
Location
Use map searchProperty Description
Ciel B is an elegant duplex with breathtaking alpine views
A unique opportunity to own a customizable duplex apartment in the calm yet central Favrands neighbourhood, just a 15-minute walk from Chamonix centre. Set in a beautifully restored Savoyard building, Ciel B combines alpine character with modern performance.
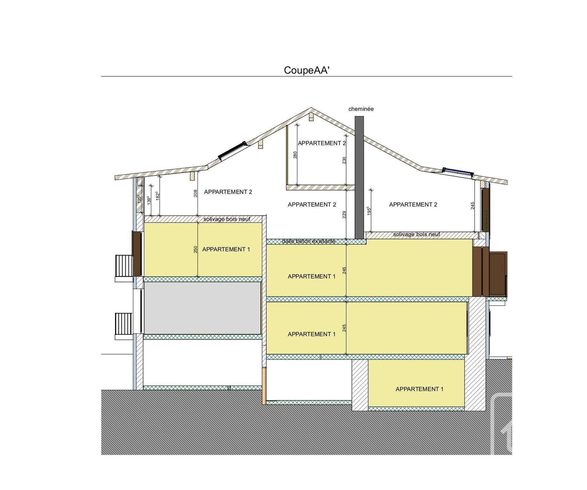
With a total surface area of 118 m² across the upper floors of this traditional building, the property boasts a vast living area with double volume ceiling height and multiple glass openings in the west façade and the roof, offering panoramic vistas that stretch from Les Drus to Mont Blanc and Le Brévent.
The current layout suggestion is as follows, alterations may still be possible, please contact us for more details:
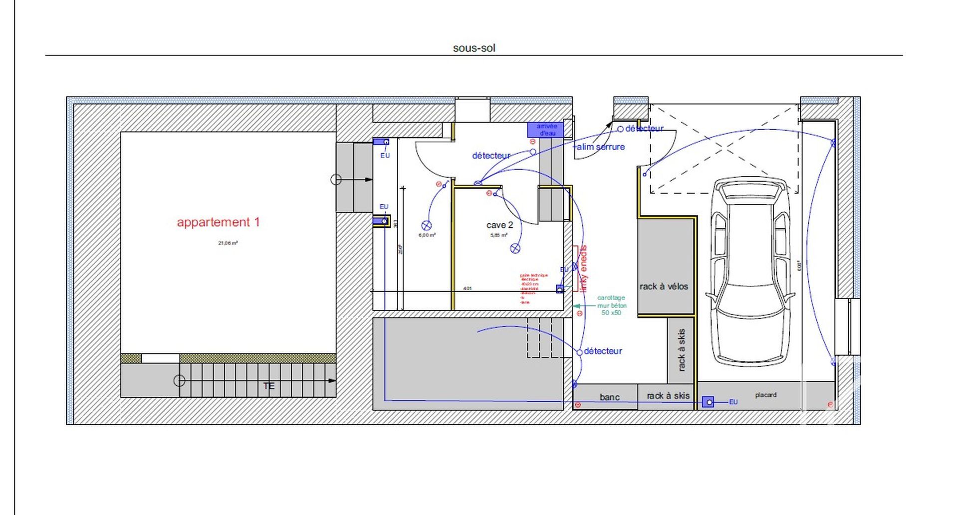
Ground floor: communal entrance, storage cellar, exterior parking
Second Floor: private staircase entrance into a light and voluminous living space, featuring an open-plan kitchen, dining and living area with Mont Blanc views, two double bedrooms both en-suite.
Top Floor: Escape to your 36 m² master suite with a walk-in closet and private bathroom - a serene alpine sanctuary. Option to create two smaller rooms.
Included in the sale: Two outdoor parking spaces and a private storage cellar.
Perfect for those who crave style, space, and spectacular mountain views - all in one exceptional home.
Delivered as a shell, ready for your personal design. Interior architect available for a turnkey finish if desired.
A traditional picturesque neighbourhood close to Chamonix centre, with shops, lakes, climbing, transport links, and Geneva access all close by.
The property is covered by the copropriété rules.