Appt. Les Pins 3 - Appt. Les Pins 3Appt. Les Pins 3 - DiningAppt. Les Pins 3 - Living
More Photos
Appt. Les Pins 3
285 000 €

This site is protected by reCAPTCHA Enterprise and the Google Privacy Policy and Terms of Service apply.

Another opportunity to acquire an apartment in this ever popular development.

Ed Ockelton Alpine Property agent for Châtel & Vallée
Contact Download PDF

Key Features

Appt. Les Pins 3

Price
285 000 €uros
Status
SOLD
Last updated
20/05/2013
Area
Portes Du Soleil
Location
Châtel & Vallée
Village
Chatel
Bedrooms
2
Bathrooms
1
Floor area
54 m²
Heating
Underfloor heating
Chimney
None
Ski access
Ski bus
Nearest skiing
700 m
Nearest shops
600 m
Garage
Single
Drainage
Mains drains
Number of lots
TBC
Procédure en cours
No
Agency fees
Paid by the seller

Location

Use map search

Property Description

Completed in 2007, residence Les Pins is an apartment development in an excellent location between Chatel centre and the ski area of Linga. It is walking distance to the centre of Chatel and it is possible to ski back to the apartments from Linga (via an off-piste field).

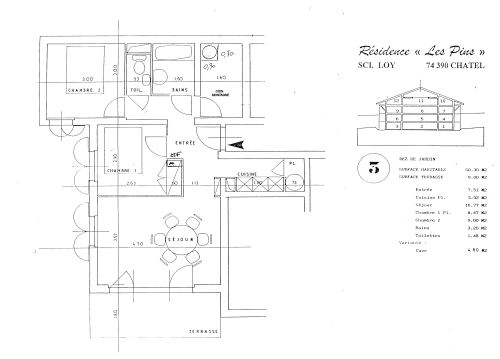
Apartment 3 is on the ground floor and comprises: Living/dining room with access to the garden, galley style kitchen, 2 bedrooms, coin montagne room, bathroom, separate WC, lots of built in storage, garage and ski locker.

The apartment is finished to a high standard with good quality fixtures and fittings.

The property is covered by the copropriété rules.

Read more


Other Châtel & Vallée Apartments

...

Recently Viewed

...

Information on the risks to which this property is exposed is available on the Georisques site: www.georisques.gouv.fr

Energy Efficiency Ratings (DPE+GES)
logement très performant
consommation (énergie primaire)
500
kWh/㎡.year
émissions
0
kg CO2/
㎡.year
logement extrêmement consommateur d'énergie
passoire énergétique
Dont émissions de gaz à effet de serre
peu d'émissions de CO2
0 kg CO2/㎡.year
émissions de de CO2 trés importantes

Share Appt. Les Pins 3