La Clef des Champs, Appt. A2 - La Clef des Champs, Appt. A2 - La Clef des Champs, Appt. A2 -
More Photos
La Clef des Champs, Appt. A2
178 850 €

This site is protected by reCAPTCHA Enterprise and the Google Privacy Policy and Terms of Service apply.

A rare opportunity to acquire a well-located alpine property with excellent potential for customisation. Ideal for a home or an investment for rental.

Anna Allen - Clare Harvey Alpine Property agents for Alpes du Léman

Key Features

La Clef des Champs, Appt. A2

Price
178 850 €uros
Status
FOR SALE
Last updated
22/04/2026
Area
Alpes du Léman
Location
Vallée Du Risse
Village
Onnion
Bedrooms
2
Bathrooms
1
Floor area
74.4 m²
Heating
Electric radiators
Nearest skiing
700 m
Nearest shops
1 km
Drainage
Mains drains
Annual charges
550.00 €uros
Number of lots
22
Procédure en cours
No
Agency fees
Paid by the seller

Location

Use map search

Property Description

We have a video showcase on Youtube

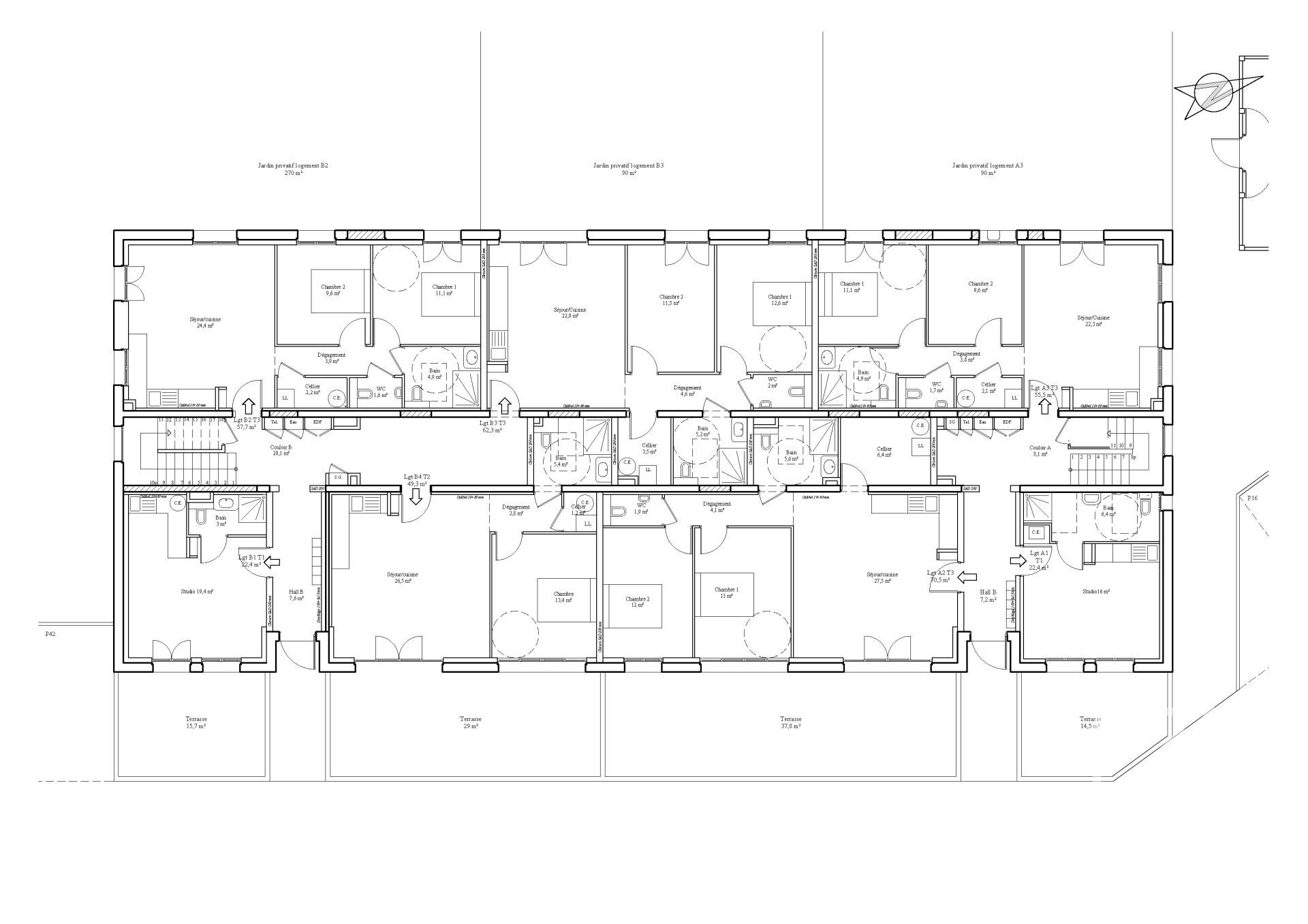
Launch of a new real estate development in Onnion. This residence is a completely renovated building which comprises 22 spacious apartments with a terrace or garden on the ground floor and a balcony on every floor.

Delivery is scheduled for the second quarter of 2026.

At an altitude of 830 metres and 500 metres from the Chennevières chairlift which provides access to the "Les Brasses" ski resort, La Clef des Champs overlooks the small village of Onnion in the hills above Saint-Jeoire. Protected from all traffic, the residence enjoys a comfortable and peaceful living environment, under the watchful gaze of Mont Blanc, 30 minutes from Switzerland and 40 minutes from Lake Geneva.

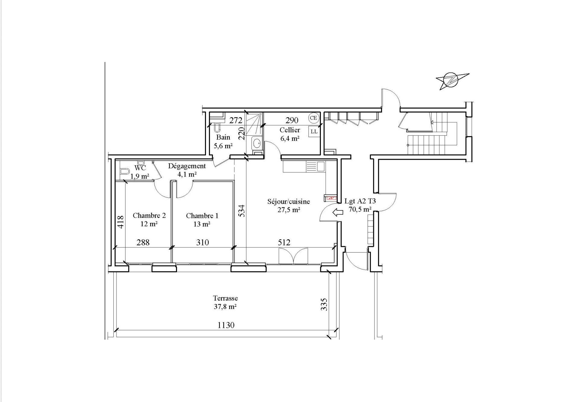
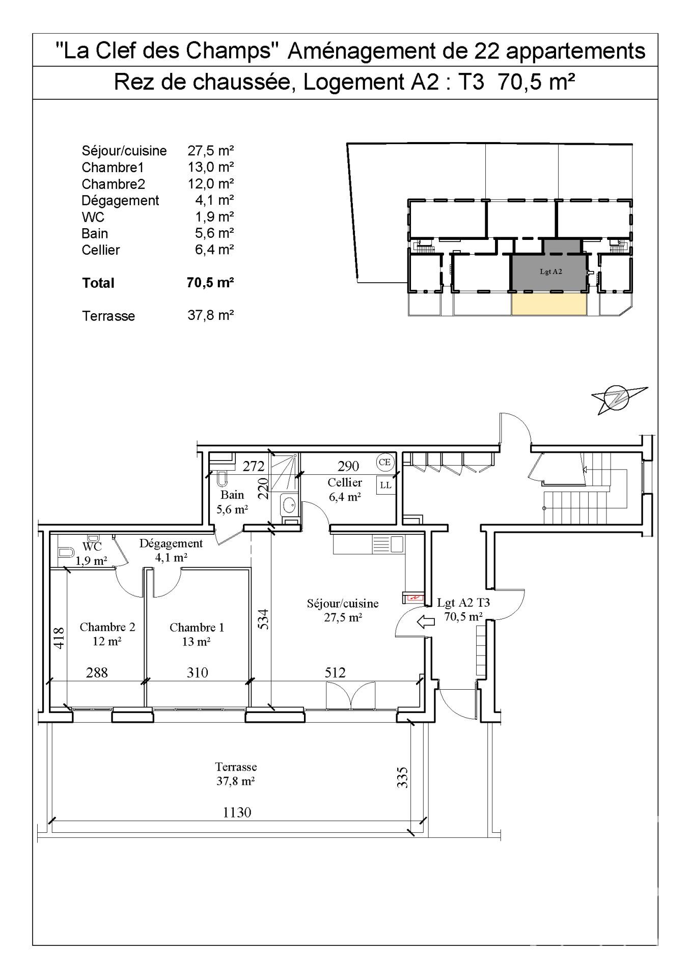
This apartment is on the ground floor facing South East with a terrace area and views of Mont Blanc.

Finishing options
The prices shown are for purchasing the base apartment and completing it yourself. A finished option (and price) may be available, please enquire. The finished habitable space should be around 70.50m2.

Land
The building is settled within 3800m2 of land, the surrounding countryside is agricultural, no further development can take place.

Parking
The residence offers one parking space per apartment included in the price. A second space, subject to availability, can be purchased for 2500€.

Storage Units
An external annex comprising 12 storage units of 3 m² each will be built on the north side of the property. These are available for purchase at 5000€.

This property is very well situated; walking distance from the village of Onnion which has a superette, boulangerie, schools and a swimming pool. The town of St Jeoire is 5km away with schools, commerce, restaurants and services. Skiing is easy to access at Les Brasses, a walk or 3min car ride away, also Sommand/Praz de Lys 20mins away. Larger ski areas such as Les Portes du Soleil and Flaine are about 35mins away. Geneva Airport is a 45mins drive and the A40 motorway is only a 15min drive.

Each unit will be equipped with:
- A front door.
- An intercom system with a handset for opening the ground floor lobby door.
- New or renovated exterior windows and doors, all equipped with electric roller shutters (except for bathroom windows and second-floor windows and doors).
- The necessary drainage for utilities.
- Water supply with a metre located in the communal hallway.
- Electrical connection with a Linky box and metre.
- Fibre optic connection is planned for the second half of 2026.
- Wooden staircase for the nine duplex apartments on the second floor (the staircase finish will be the responsibility of the owner).
- A draft interior layout plan is provided to each buyer.

Regardless of the chosen option, whether a shell or a finished apartment, this project offers future buyers solutions for adapting the layout or personalising each unit:
- Storage room installation;
- Bathroom renovations;
- Conversion of a two-bedroom apartment into a larger one-bedroom apartment;
- Separate toilet or one integrated into the bathroom;
- Modification of the kitchen, bedrooms, etc.

The property is covered by the copropriété rules.

Read more

Take a Virtual Tour


Other properties in this development

...

Other Vallée Du Risse Apartments

...

Recently Viewed

...

Information on the risks to which this property is exposed is available on the Georisques site: www.georisques.gouv.fr

Energy Efficiency Ratings (DPE+GES)
logement très performant
consommation (énergie primaire)
0
kWh/㎡.year
émissions
0
kg CO2/
㎡.year
logement extrêmement consommateur d'énergie
passoire énergétique
Dont émissions de gaz à effet de serre
peu d'émissions de CO2
0 kg CO2/㎡.year
émissions de de CO2 trés importantes

Share La Clef des Champs, Appt. A2