Chalet Chouca - Chalet Chouca - Chalet Chouca -
More Photos
Chalet Chouca
1 290 000 €
Virtual Tour

This site is protected by reCAPTCHA Enterprise and the Google Privacy Policy and Terms of Service apply.

A fabulous family chalet with tons of space, private garden, and great mountain views

Manu Maclean - Claire Williams Alpine Property agents for Chamonix & Valley

Key Features

Chalet Chouca

Price
1 290 000 €uros
Status
FOR SALE
Last updated
31/12/2025
Area
Mont Blanc
Location
Chamonix & Vallée
Village
Les Houches
Bedrooms
4
Bathrooms
4
Floor area
225 m²
Land area
700 m²
Detached
Yes
Heating
Combined system
Chimney
Wood burning stove
Ski access
Ski bus
Nearest skiing
2 km
Nearest shops
700 m
Garden
Yes
Garage
Double
Drainage
Mains drains
Agency fees
Paid by the seller

Location

Use map search

Property Description

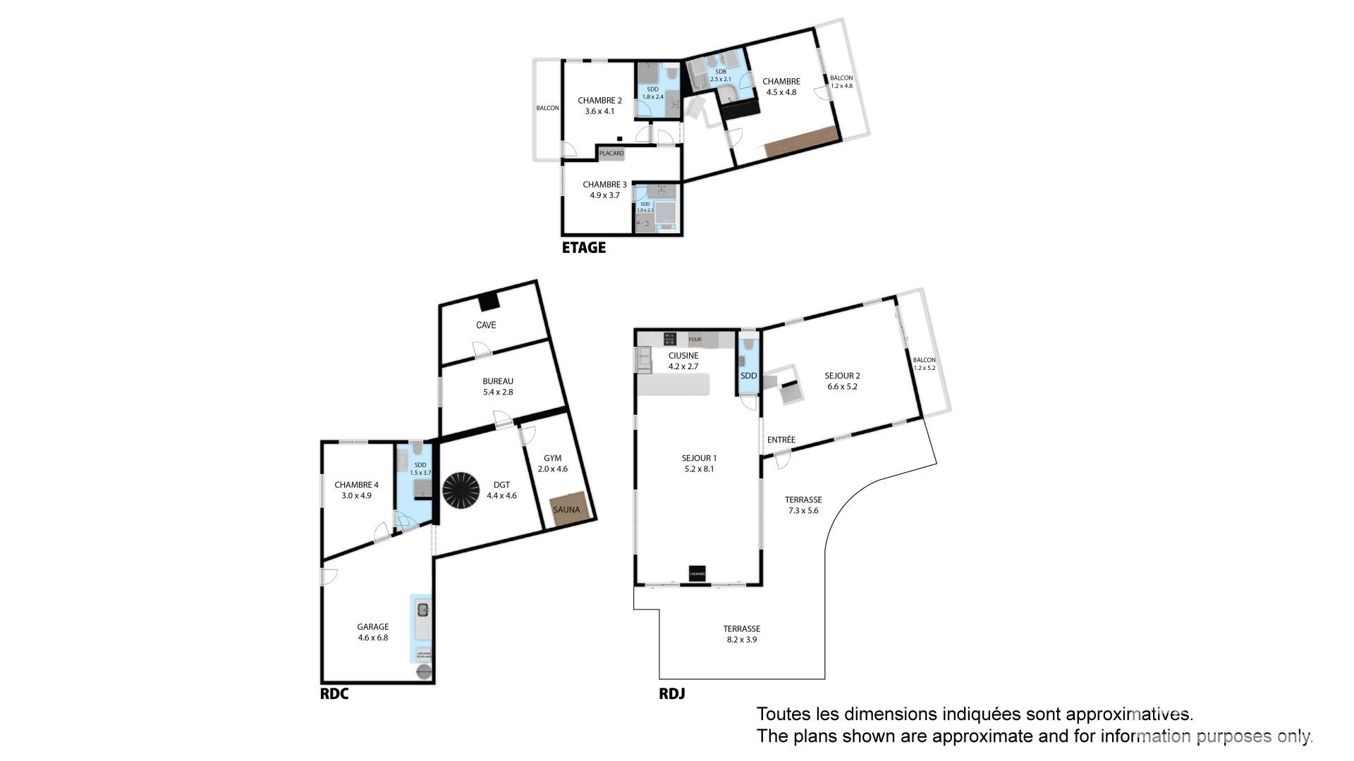
Chalet Chouca is in the St. Antoine neighbourhood of the ski resort and village of Les Houches, within walking distance of local shops, restaurants and public transport. Geneva airport is an hour’s drive away.

Built in 2007, it is recent and in good condition throughout, with plenty of space spread over three levels, offering flexibility, plenty of storage, and a variety of living areas to be enjoyed.

It comprises thus:

Garden level: entrance into second living room with south-facing balcony, guest WC, fully equipped open-plan kitchen onto dining area and cathedral height primary living room with multiple glass openings, views of the ski pistes, opening onto a large wooden terrace and private garden facing west. A wood burning stove was installed in 2025 for added ambiance on cosy winter nights.

Upper level: south-facing master bedroom with balcony and ensuite with bath and shower, two further bedrooms with shower ensuites, one with north-west facing balcony.

Lower level: chill out zone, gym with sauna, office, storage room, double garage, fourth double bedroom with ensuite.

Exterior parking for several vehicles.

Central heating & hot water: town gas.

Read more

Take a Virtual Tour

Energy Efficiency Ratings (DPE+GES)

Energy Efficiency Rating (DPE)

d

CO2 Emissions (GES)

c
DPE in detail

Other Chamonix & Vallée Chalets

...

Recently Viewed

...

Information on the risks to which this property is exposed is available on the Georisques site: www.georisques.gouv.fr

Energy Efficiency Ratings (DPE+GES)
logement très performant
consommation (énergie primaire)
205
kWh/㎡.year
émissions
27
kg CO2/
㎡.year
logement extrêmement consommateur d'énergie
passoire énergétique
Dont émissions de gaz à effet de serre
peu d'émissions de CO2
27 kg CO2/㎡.year
émissions de de CO2 trés importantes

Share Chalet Chouca