This site is protected by reCAPTCHA Enterprise and the Google Privacy Policy and Terms of Service apply.


Fantastic opportunity to acquire one of these brand new, high quality apartments in a quiet and sunny area of Les Carroz with uninterrupted mountain views
Aude Garnier - Maxime Bruneau Alpine Property agents for Les CarrozKey Features
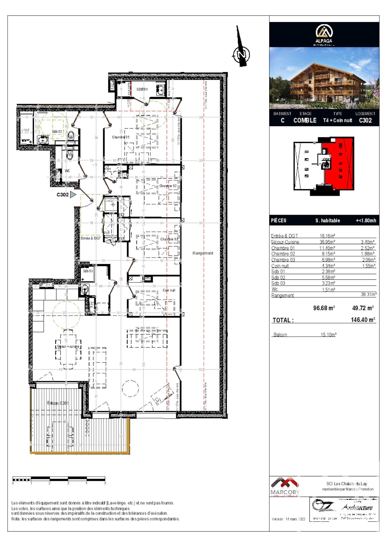
Appt. Alpaga, C302
- Price
- 809 000 €uros
- Status
- FOR SALE
- Last updated
- 27/07/2025
- Area
- Grand Massif
- Location
- Flaine & Les Carroz
- Village
- Les Carroz d`Araches
- Bedrooms
- 4
- Bathrooms
- 2
- Floor area
- 146.4 m²
- Ski access
- Ski bus
- Nearest skiing
- 1 km
- Nearest shops
- 300 m
- Garage
- Single
- Drainage
- Mains drains
- Number of lots
- 29
- Procédure en cours
- No
- Agency fees
- Paid by the seller
Location
Use map searchProperty Description
Welcome to Alpaga, located at the entrance of Les Carroz in the Lays area. The village centre is accessible on foot in 15 minutes, and a small supermarket is just 5 minutes away.
This complex consists of 3 chalet-type buildings, with A and B already delivered, and C currently being marketed.
With its mountain spirit, Alpaga meets the highest standards of energy efficiency and comfort, particularly with compliance with the RT2012 standard and acoustic regulations.
Building C is on a basement and consists of 13 apartments spread over 3 floors.
Regarding the apartments, large windows have been planned to allow maximum light entry.
The entrance, hallway, storage room, and bedrooms will be equipped with laminate flooring. The bathroom and WC will have ceramic stoneware tiles sized 60x60cm. The kitchen will be equipped with Bosch appliances, including a combined refrigerator and freezer, dishwasher, oven, recycling extractor hood, and a 4-burner induction hob.
Here are some additional features: wooden exterior joinery with aluminum roller shutters, wooden interior doors, suspended toilet, videophone, elevator, and a communal bicycle storage room.
Finally, each apartment will have underfloor heating with its own condensing gas boiler and will have a private underground parking space, a cave, and a ski locker.
Apartment C302 is a spacious T4 + bunk room of 146.40 sqm (of which 96.68 sqm is official Carrez law) located on the 3rd and last floor, under the eaves. It is composed as follows: an entrance with built-in storage and a corridor off of which are various rooms. The north side serves the sleeping area with 4 bedrooms (including one ensuite), a bathroom, and an independent toilet.
Finally, in the south part, there is the generous living space with a living room and kitchen. From there, you can access the approximately 15.10 sqm balcony facing southeast.
All necessary guarantees are in place to protect your investment.
As it is a new construction, Notary fees are reduced (2.5%).
The property is covered by the copropriété rules.