Villa Fleury, Appt.4 - Villa Fleury, Appt.4 - Villa Fleury, Appt.4 -
More Photos
Villa Fleury, Appt.4
1 380 000 €
Virtual Tour

This site is protected by reCAPTCHA Enterprise and the Google Privacy Policy and Terms of Service apply.

Delightful south-east facing sunny three bed apartment in a historic residence, ideal high yield rental investment or primary residence, 5 minutes’ walk to Chamonix high street, one hour from Geneva airport.

Manu Maclean - Claire Williams Alpine Property agents for Chamonix & Valley

Key Features

Villa Fleury, Appt.4

Price
1 380 000 €uros
Status
FOR SALE
Last updated
15/01/2026
Area
Mont Blanc
Location
Chamonix & Vallée
Village
Chamonix
Bedrooms
3
Bathrooms
2
Floor area
80.1 m²
Heating
Electric radiators
Nearest skiing
400 m
Nearest shops
400 m
Drainage
Mains drains
Annual charges
50.00 €uros
Number of lots
16
Procédure en cours
No
Agency fees
Paid by the seller

Location

Use map search

Property Description

Located in an iconic villa designed by Fleury Raillon in 1926, these elegant two and three bedroom apartments combine historic charm with modern comfort. Filled with natural light from large bay windows and high ceilings, each apartment offers stunning views of the Mont Blanc and Brévent massifs.

Located at the foot of Mont Blanc in a quiet location close to the Majestic hotel and the primary school, and only minutes from the Brévent cable car, with easy access to world class skiing and summer alpine trails.

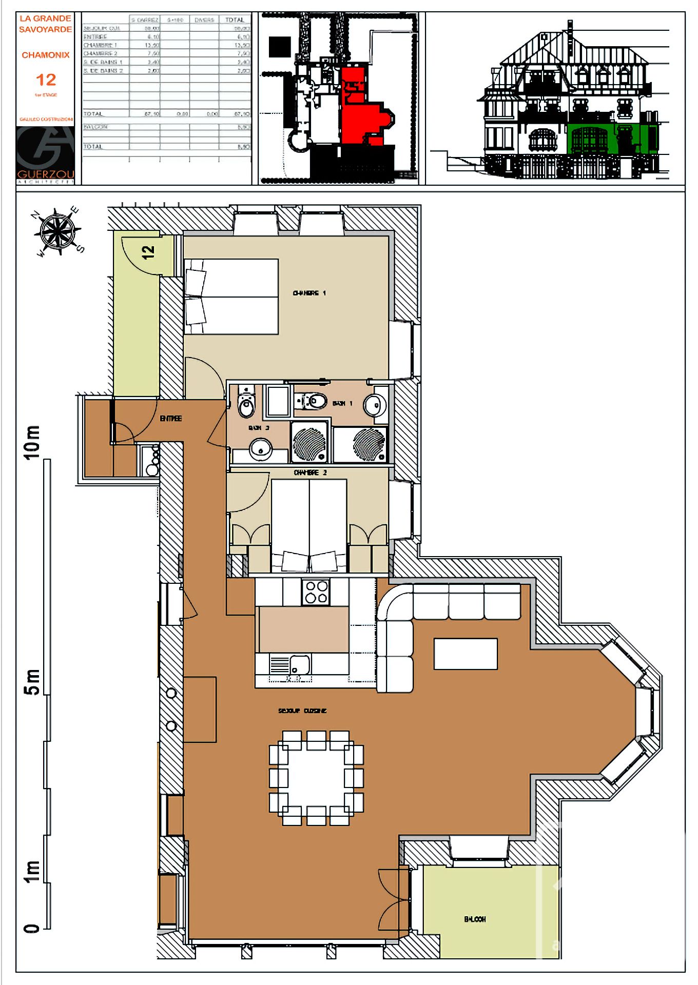
Apartment 4 is 88,09m2 and located on the first floor, facing south-east and south-west and flooded with natural light. Mont Blanc is framed by the beautiful bay window in the third bedroom, as well as from the huge feature window and balcony in the main living space.

The apartment comprises thus:

Entrance hallway with storage, large double bedroom with ensuite bathroom and Mont Blanc-facing window, family bathroom, guest toilet, second double bedroom with large windows, open plan kitchen/living/dining room opening onto with stunning large arched feature window and lovely balcony facing Mont Blanc, third double bedroom with feature bay window.

Each apartment is sold with its own parking space and garages are also for sale for an additional fee.

Proven rental track record, further information available upon request.

The property is covered by the copropriété rules.

Read more

Take a Virtual Tour

Energy Efficiency Ratings (DPE+GES)

Energy Efficiency Rating (DPE)

e

CO2 Emissions (GES)

c
DPE in detail

Other Chamonix & Vallée Apartments

...

Recently Viewed

...

Information on the risks to which this property is exposed is available on the Georisques site: www.georisques.gouv.fr

Energy Efficiency Ratings (DPE+GES)
logement très performant
consommation (énergie primaire)
304
kWh/㎡.year
émissions
12
kg CO2/
㎡.year
logement extrêmement consommateur d'énergie
passoire énergétique
Dont émissions de gaz à effet de serre
peu d'émissions de CO2
12 kg CO2/㎡.year
émissions de de CO2 trés importantes

Share Villa Fleury, Appt.4